Material storage for the RWTH Faculty of Architecture

The physical model is often essential for communicating a design in architectural studies. During the construction of these models, both at the institutes and among the students, leftover materials often accumulate that could still be used. Currently, most of these materials are discarded at the end of the semester. However, if there were a central location for storing these materials, model-building supplies could be recycled, reducing costs for students.

To address this issue, a material storage is proposed in the rarely used basement foyer of the Reiff museum (building of the architecture faculty). The concept involves designing mobile furniture that can be easily moved into the room for material flea markets. The design should also include a concept of usage with guidelines. For example, what size of cardboard scraps are too small to be stored? Should there be regular cleaning and decluttering sessions? How can we prevent the furniture from being stolen or moved to the upstairs workspaces? Where should each type of material be stored? What building materials will be used for the furniture, and what will the potential construction costs be?

2023

Front view 1:10
Back view 1:10
Side view 1:10
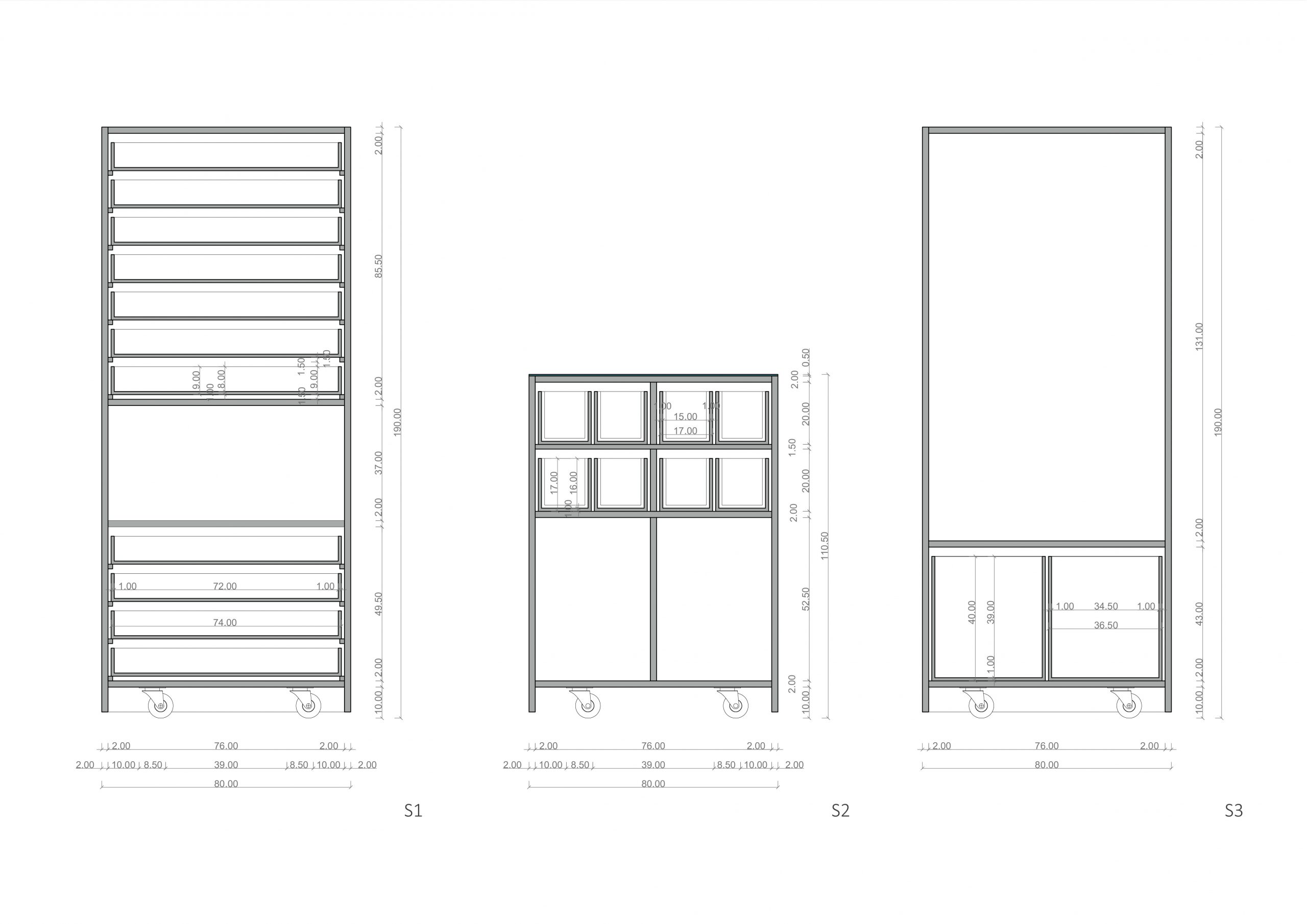
Section 1:10
Isometric view of the cabinets
Concept of use
Construction plan of the drawers and shelves
Construction plan for the cabinets
Terms of use
Potential costs