Social value in renovation: Vacant office buildings as a response to housing demand
Why renovation? Why transforming existing buildings?
The construction sector bears a unique responsibility for improving the relationship between natural and built environment, reducing resource consumption, and promoting sustainable, intergenerational practices. It is our social duty to leave a healthy and livable world for future generations. In Germany, the construction industry is responsible for 40% of greenhouse gas emissions, consumes approximately 50% of resources, and accounts for 54% of our waste. The sector is highly resource-intensive, often ending the lifecycle of materials prematurely through demolition. The goal should be to maximize the potential of existing resources and establish new approaches for dealing with existing buildings.
In addition to the broad requirements of the field of architecture, there are new social, ecological and economic requirements that architects must consider as a whole in their projects. A building that is healthy and sustainable for both people and the environment encompasses various aspects:
It should ensure safety and privacy, provide accessible social environments, and offer comfort and well-being. Long-term usability and minimal environmental impact are essential. However, the solution is not always found in new construction and innovation.
This project aims to demonstrate the social and sustainable benefits of repurposing vacant buildings rather than demolishing them and constructing new ones. The focus is on reusing structures, reducing CO2 emissions, and conserving resources in line with sustainability principles.
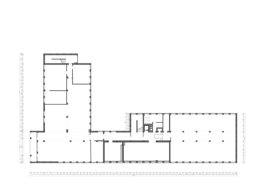
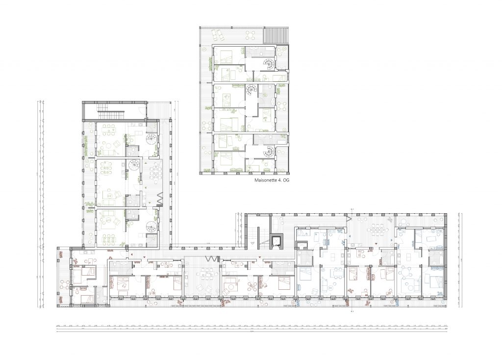
The renovation of the old post office building in Düsseldorf Oberbilk focuses on healthy living. It emphasizes the creation of „social spaces“ within the community, daylight, indoor climate, and the connection of people to nature. The building’s function will be transformed into a residential space — a home that brings people together and unites them.
Guiding questions of the project:
How can a building be designed to have the least negative impact on the environment?
Which architectural features contribute to human health and well-being?
How can a residence protect against environmental impacts while connecting occupants with their surroundings?
How can a residence accommodate a changing society, addressing its social needs with flexibility?
Project Goal:
What does healthy and social living look like in an office building that has been part of the cityscape for 70 years?
2024
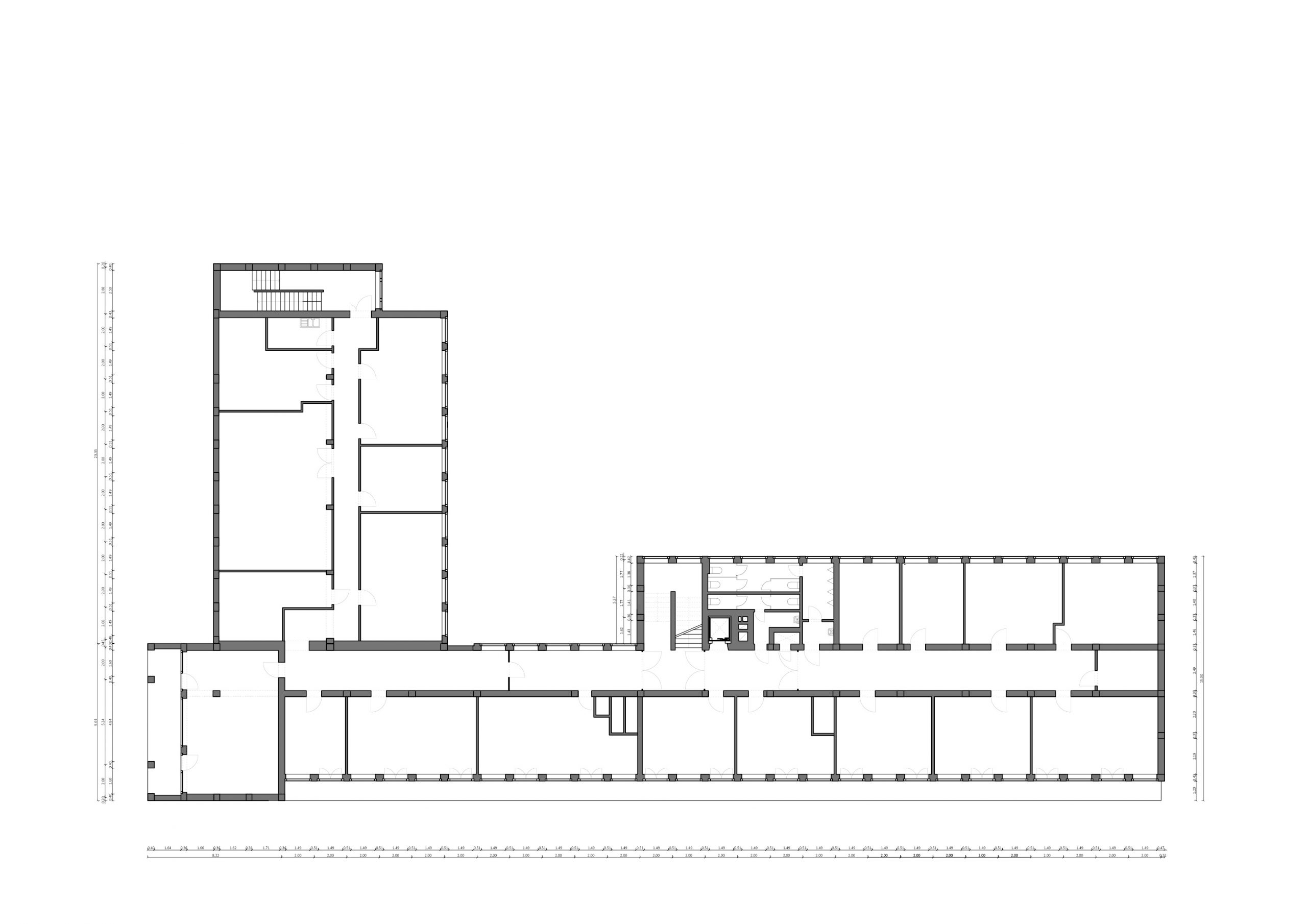
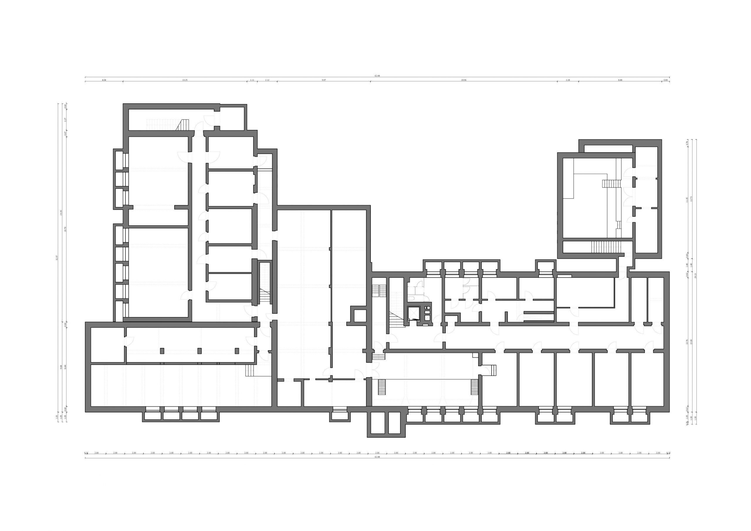
The transformation of the old post office in Oberbilk deals with the conversion of the vacant existing building into healthy and social housing, both on an architectural and usage level. Architectural processes, the conversion and the demand for a reduced negative impact on the climate crisis are combined and realized in one design.
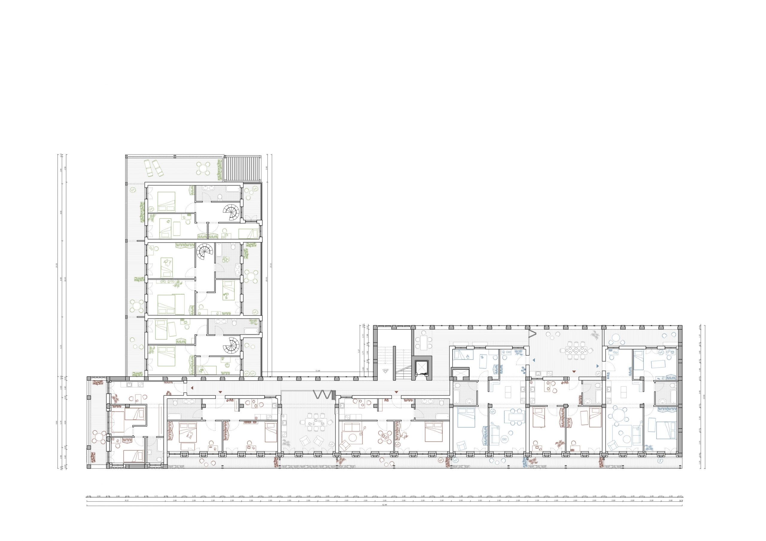
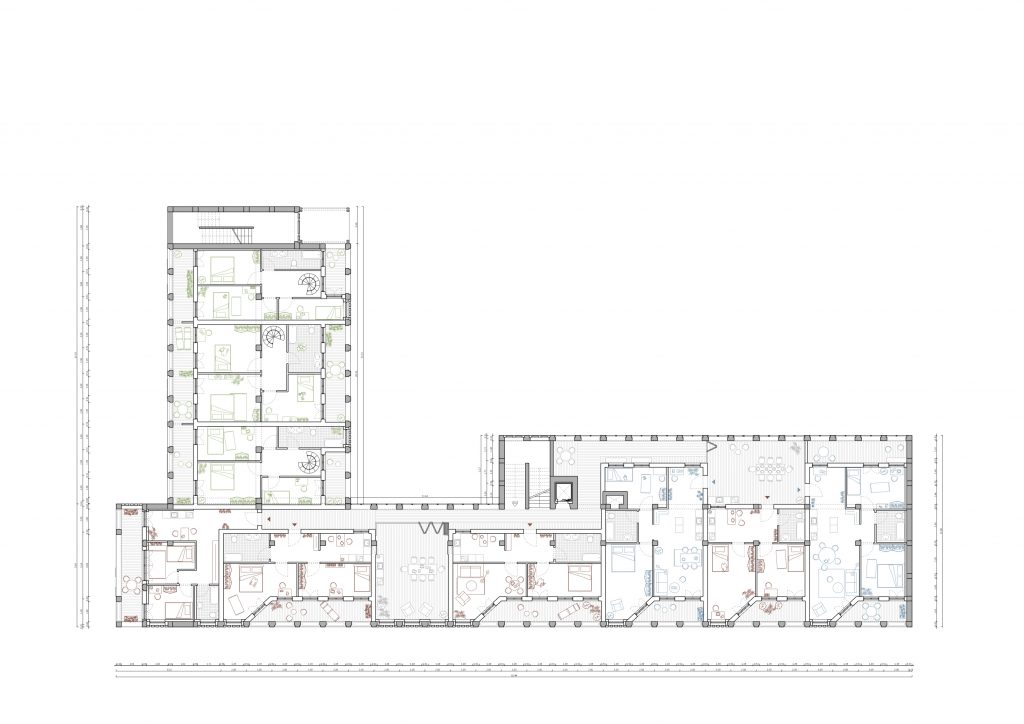
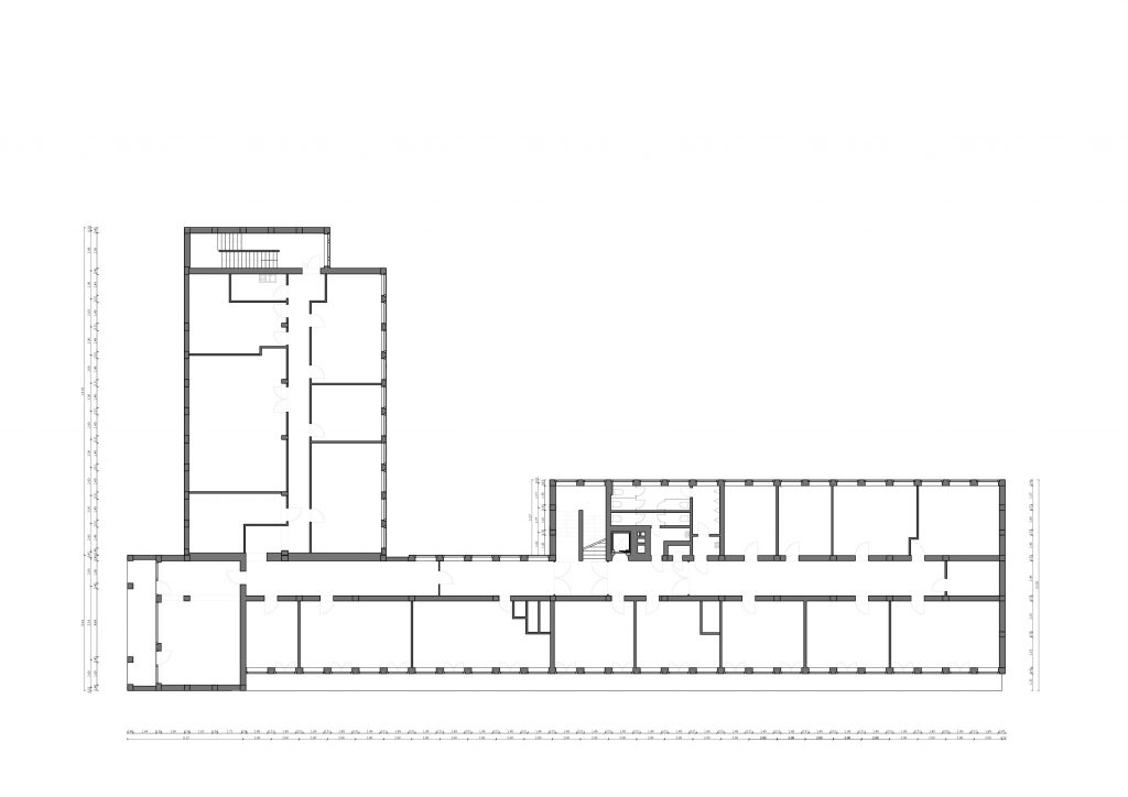
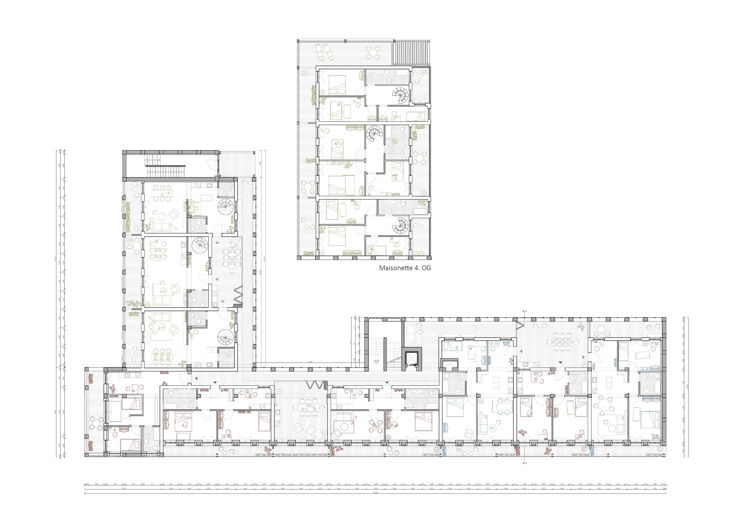
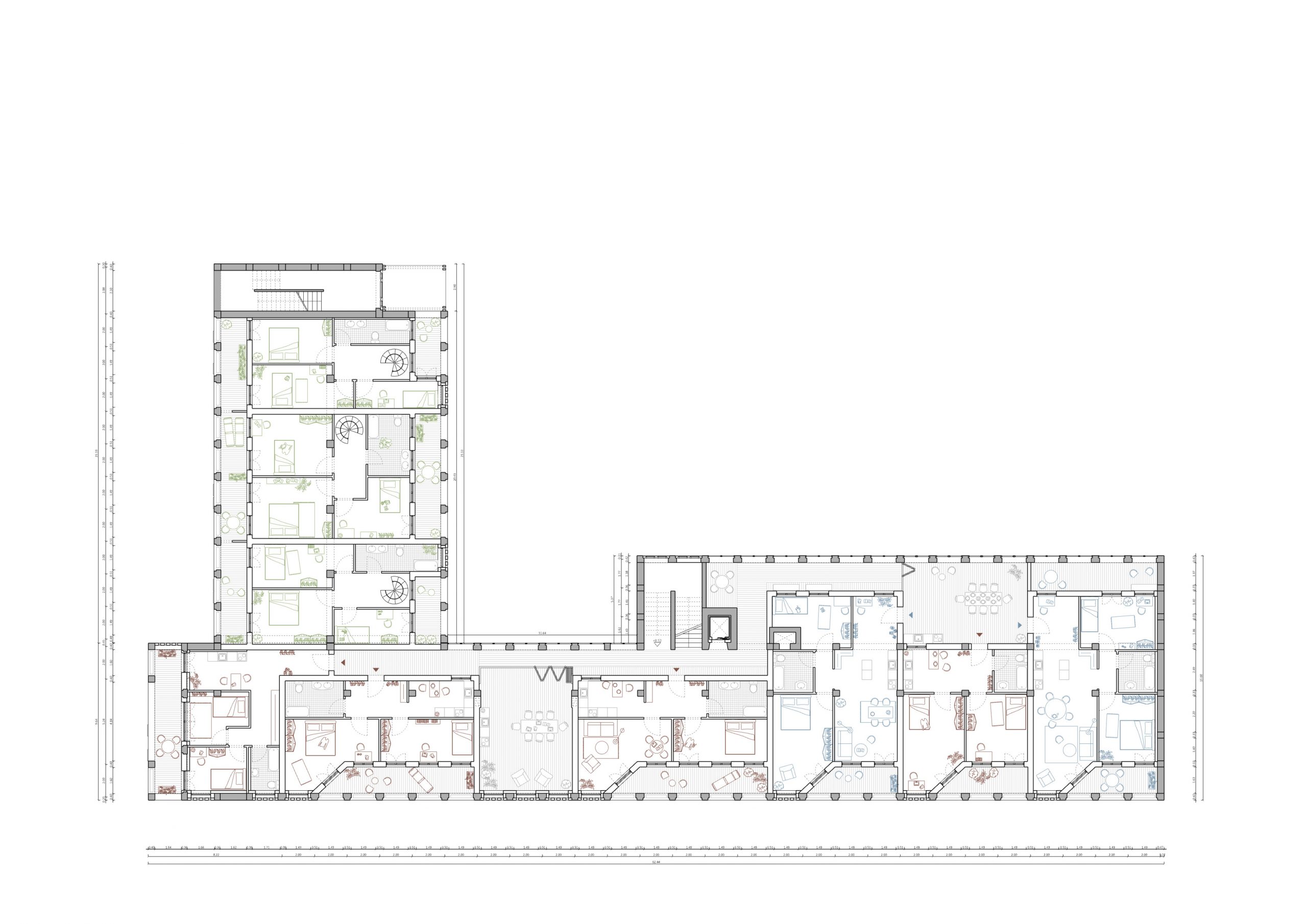
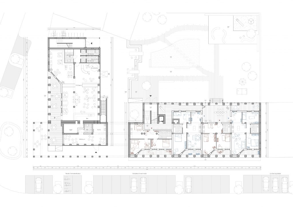
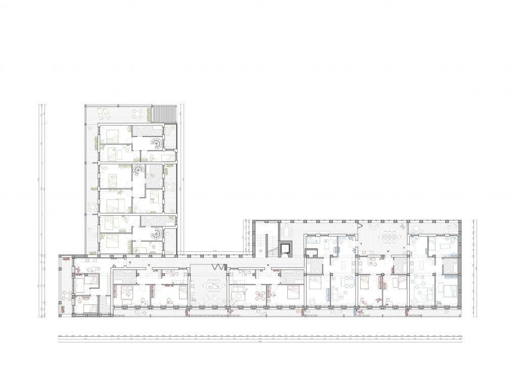
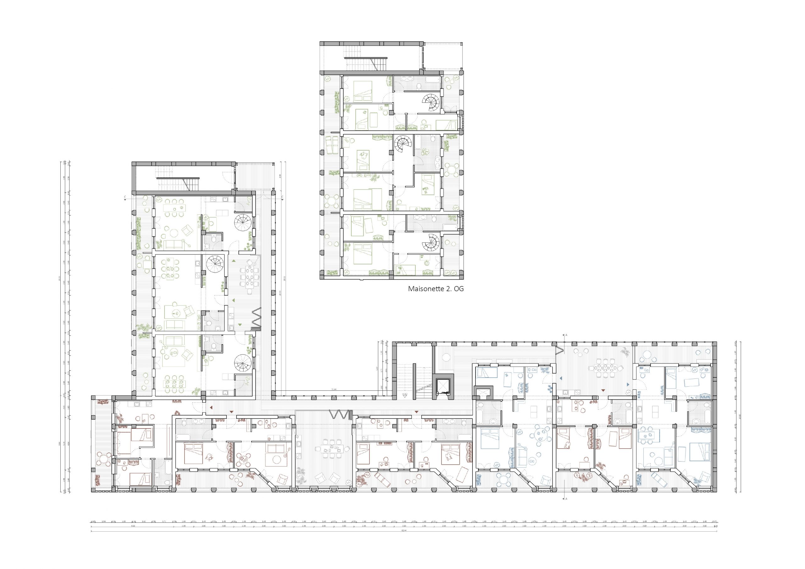
In order to accommodate a variety of residents, the design responds to the composition of our society with apartments of different sizes. The apartments offer people a place to withdraw and protect the private space to which everyone is entitled. Communal spaces allow residents to come together and support each other.
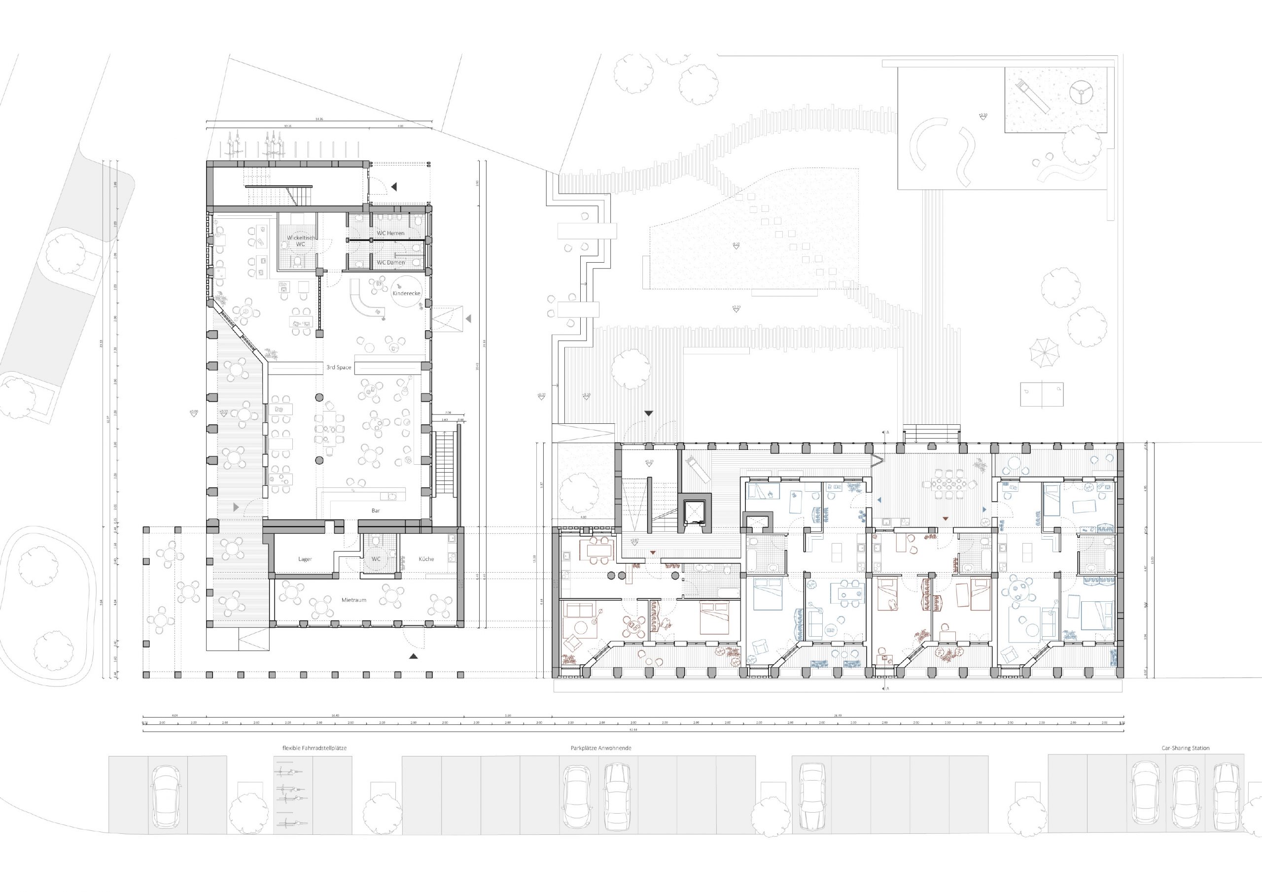
On the first floor of the Linienstraße, there is a low-threshold third place for the public to strengthen the community of the neighbourhood and provide a meeting place that functions without commercialization.
In addition to the sustainable aspects, the design focuses on how architecture can respond to a changing society and strengthen its vulnerability. In the case of the transformation of the old post office in Oberbilk, this goal is achieved by incorporating health and social aspects of human existence into the architecture.
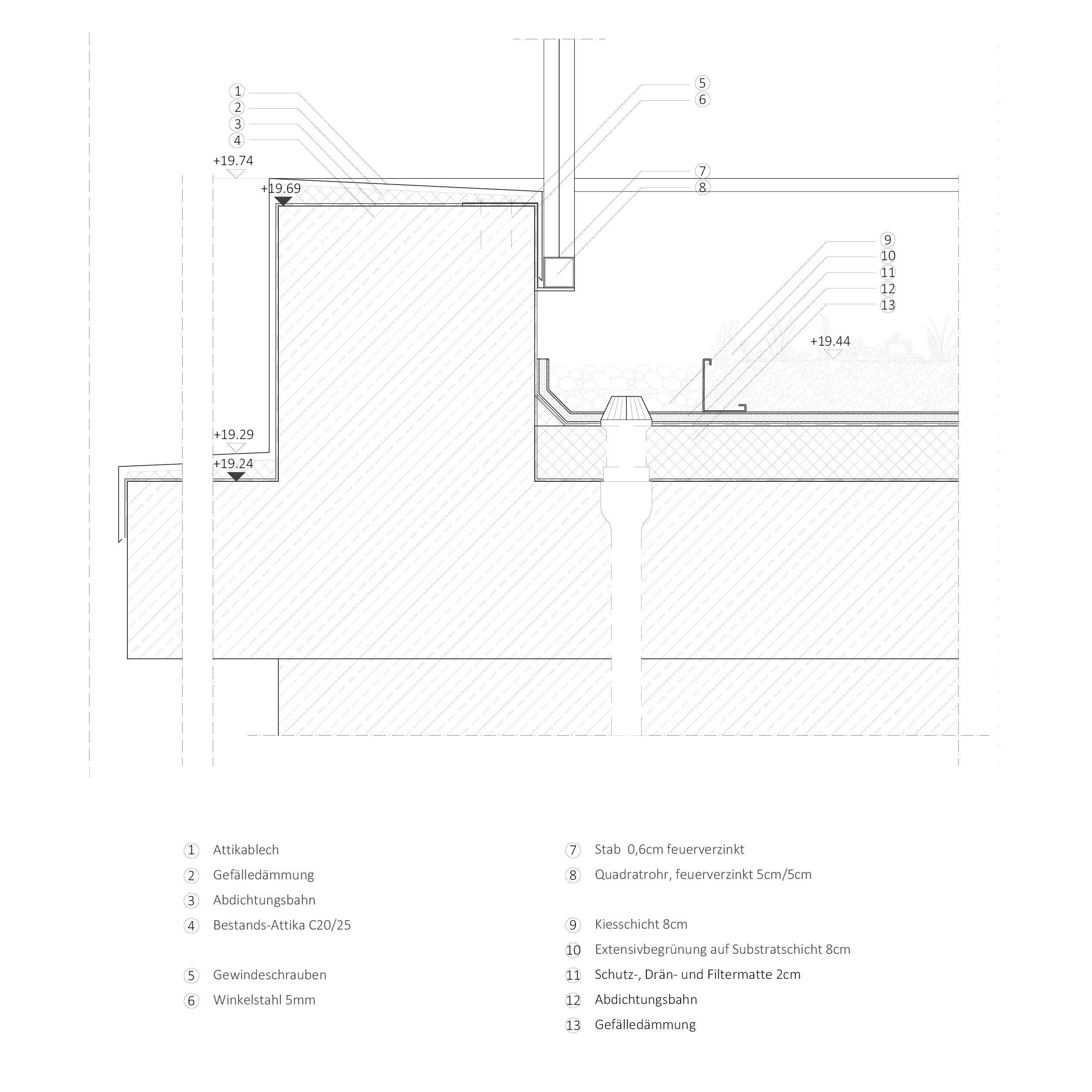
The façade and orientation of the apartments guarantee a sufficient supply of valuable daylight, which is an essential component of human rhythm and health. Depending on the orientation of the façade, various sun protection and weather protection measures guarantee individual adaptability and, depending on requirements, more or less contact with the surrounding nature and city. To facilitate shared contact with nature, the inner courtyard will be transformed into a communal garden, a roof landscape with urban gardening will allow people to experience nature and greenery on the balustrades of the loggias close to the apartments will create a natural barrier between the street space and the private apartment.
The result is a residential building that preserves the heritage of its past and responds to the future and the needs of its residents.