Building construction | Timber construction hall

This small project was a focused exercise in timber construction, exploring the connections between the skeleton structure and the façade. The aim was to understand the versatility of wood as a material and to complement it with an element façade. By integrating rotating windows as wooden features on the narrow sides, we sought to create a striking contrast between the entrances and the surrounding elements. The fragmentary nature of the façade contrasts with the span of the beams and the solidity of the wood.

2019

In collaboration with: Marie Becker, Johannes Bergerfurth, Jingli Luo, Tina Rahmani, Leon van Ouwerkerk

Model of the steel skeleton
Building view 1:50
Building view 1:50
Building section 1:50
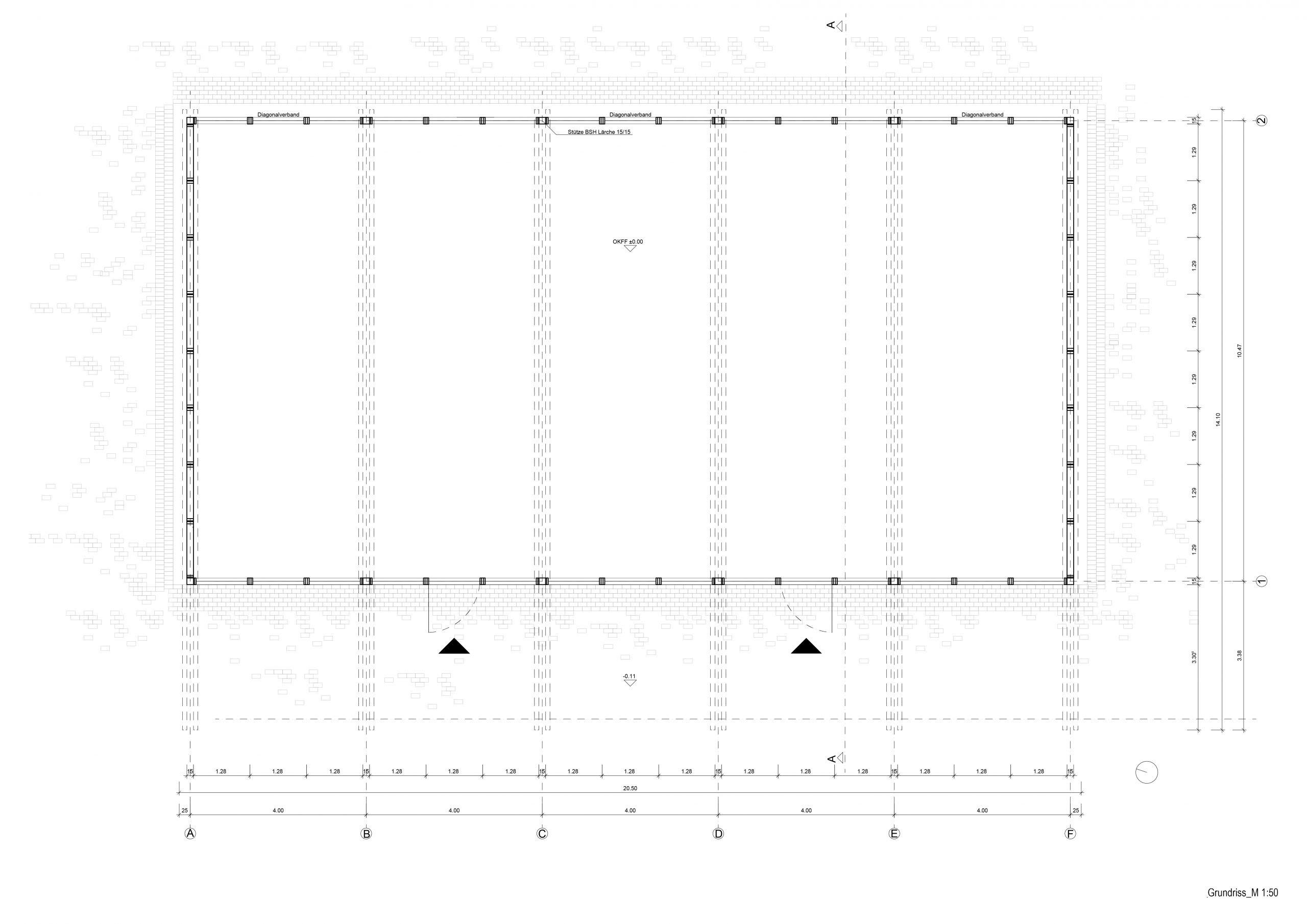
Floor plan 1:50
Building section 1:50
Base point detail 1:5
Base point detail 1:5
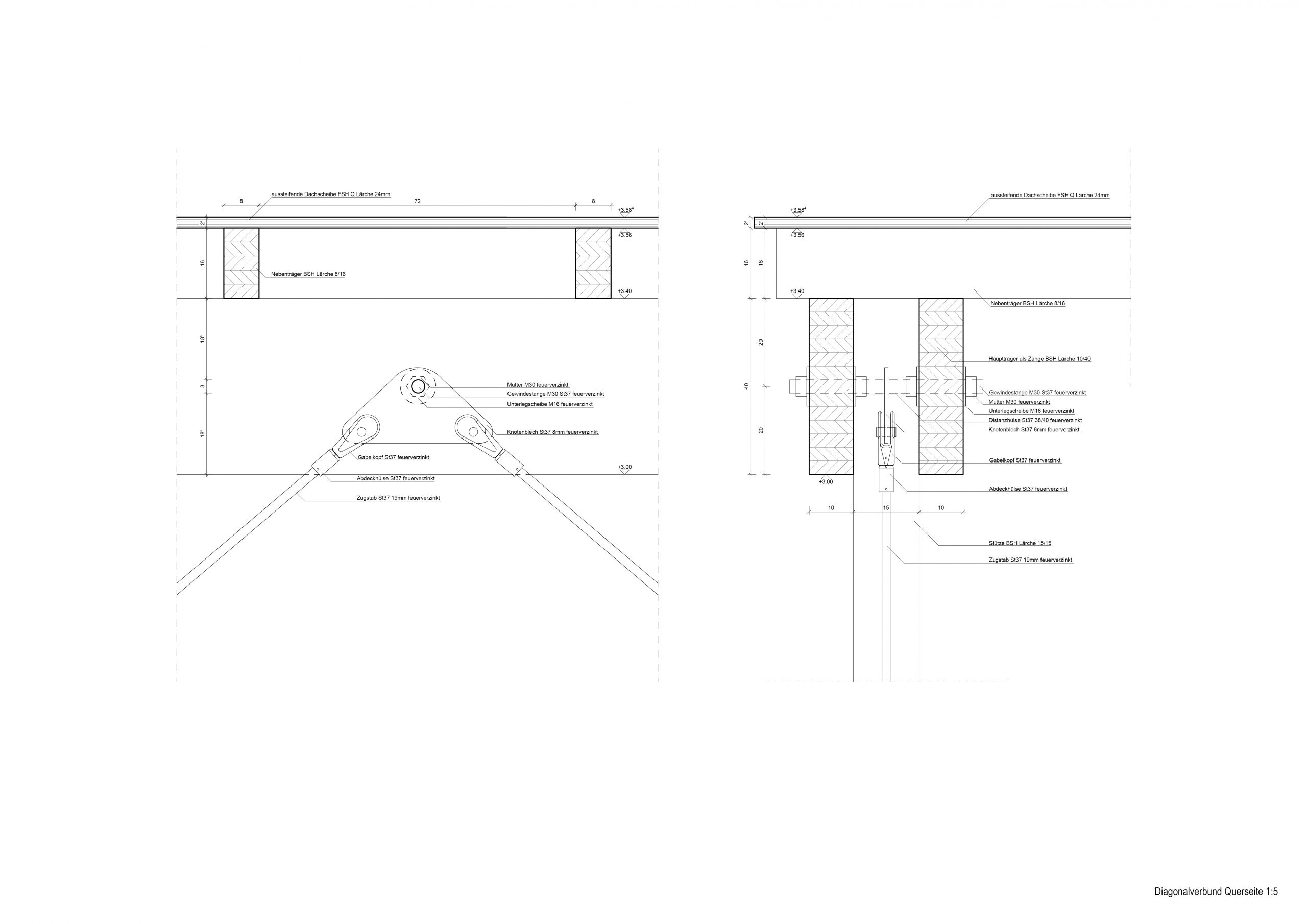
Construction details 1:5
Construction details 1:5