Steel construction hall

This smaller project was a hands-on introduction to steel construction, focusing on the connections between the structural framework and the façade. Our attention centered on the tensioned beam grid and the façade design, featuring an external sunshade. We aimed to create a light, airy steel skeleton and opted for roll-up sails for the sunshade to maintain flexibility in the exterior design.

2019

In collaboration with: Marie Becker, Johannes Bergerfurth, Jingli Luo, Tina Rahmani, Leon van Ouwerkerk

Model of the steel skeleton
Building view 1:50
Building view 1:50
Building section 1:50
Floor plan 1:50
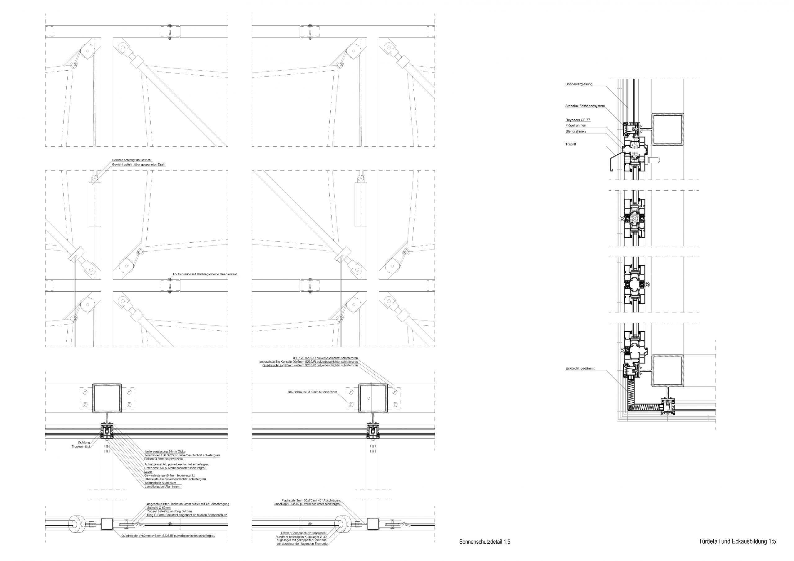
Sunshade detail and door detail 1:5
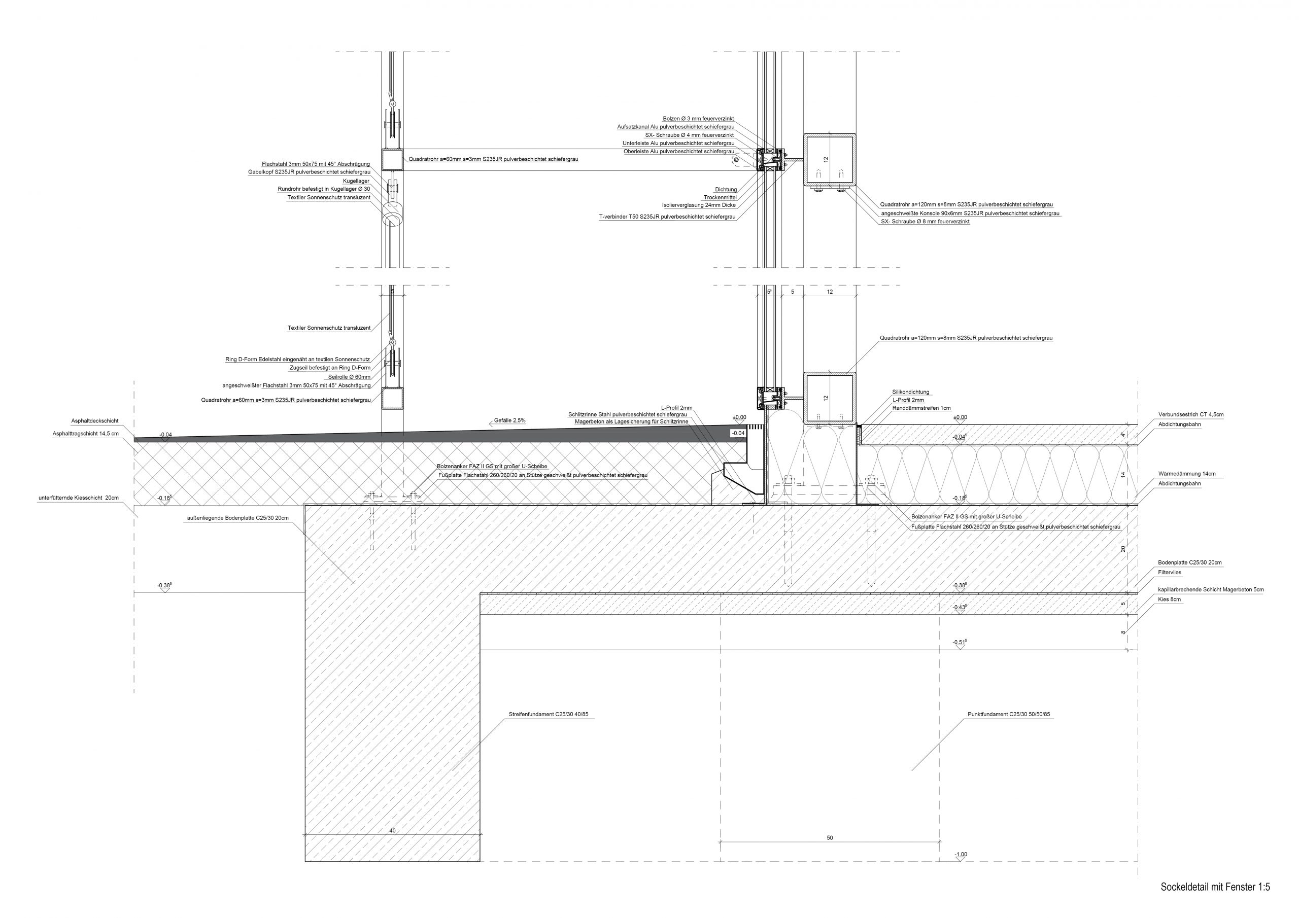
Base point detail 1:5
Roof finish detail 1:5
Construction details 1:5
Construction details 1:5