Application of cycle-compatible building materials based on the example of a kindergarten

Sustainability in architecture is often confused with optimizing current processes and making them more environmentally friendly. However, new, circular processes are required as well as a rethinking of what a building can mean, for example a material database. Rethinking and shaping a new everyday life should start with the youngest of us, the children.

There is currently a lack of childcare staff in the east of Germany and a lack of childcare places in the west. Demographic and socio-economic developments are making it difficult to plan kindergarten places. The German birth rate has been falling again since 2016 and issues such as migration are difficult to predict. It is possible that there will be a surplus of childcare places in 15 years‘ time, but it is also possible that new places will still be needed. For this reason, I opted for a kind of modular building system in the planning phase, which means that a variety of other building types are possible with these materials after it has been used as a kindergarten. I also focused on saving a lot of CO2 in the building construction and using materials that store CO2 in advance.

The development that can be observed in Germany as a whole can also be seen in Aachen. As the need for childcare for children under the age of three is rising sharply, the shortage is particularly great here. The daycare in Aachen Brand was expected to be closed at the beginning of 2022, as it was built as a temporary structure and the permit expired. However, there is a great shortage of temporary facilities. The department is focusing on Schagenstraße in order to build an extended daycare center on a permanent basis. The site is almost 3,200 square meters in size and thus offers space for a six-group facility.

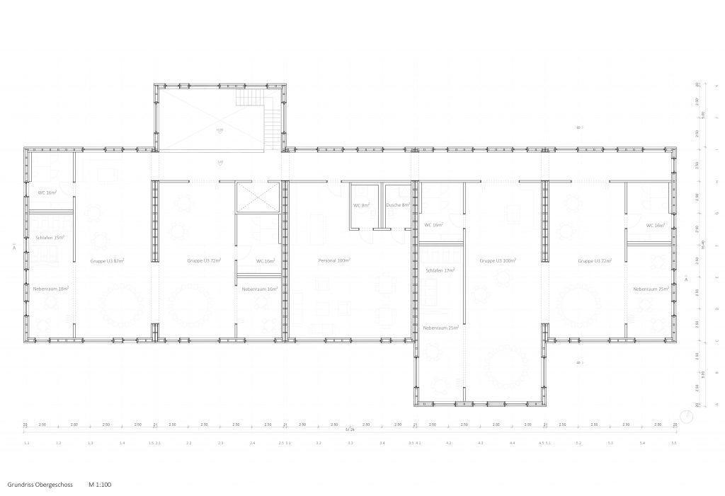
My design as lightweight timber construction for the new kindergarten building consists of five two-storey, gabled buildings, each of which could function as an independent building. On the ground floor is the spacious entrance area with the cloakroom, where parents drop off and pick up their children. The group rooms for the children over the age of three, as well as an area for physical activity and the shared kitchen are also located here. The upper floor houses the groups of the children under the age of three and the staff area.

The basic idea is that no resources are irrevocably removed from the material cycle for the construction of the kindergarten, but are only temporarily stored and used for the life of the kindergarten. They can then be reused in the same form in individual houses, semi-detached houses or in a similar arrangement to the kindergarten. The individual modules have been designed in a way that they can be dismantled at any time and rebuilt at a new location. This means that no composite materials are used and no floor coverings are laid.

2022

Location map
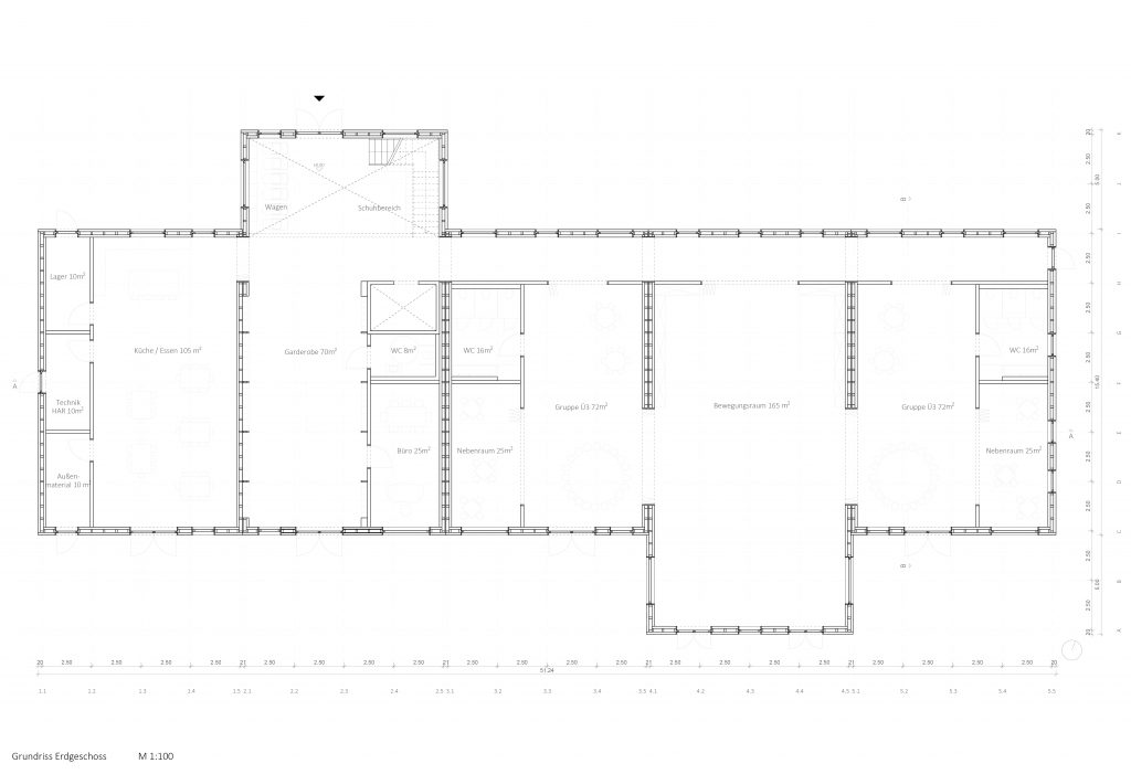
First floor plan 1:100
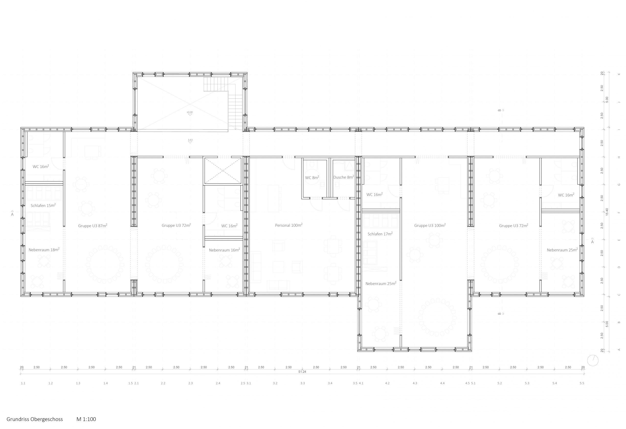
Second floor plan 1:100
Building view 1:100
Building view 1:100
Building sections 1:100
Three-panel projection 1:25
Base point detail 1:5
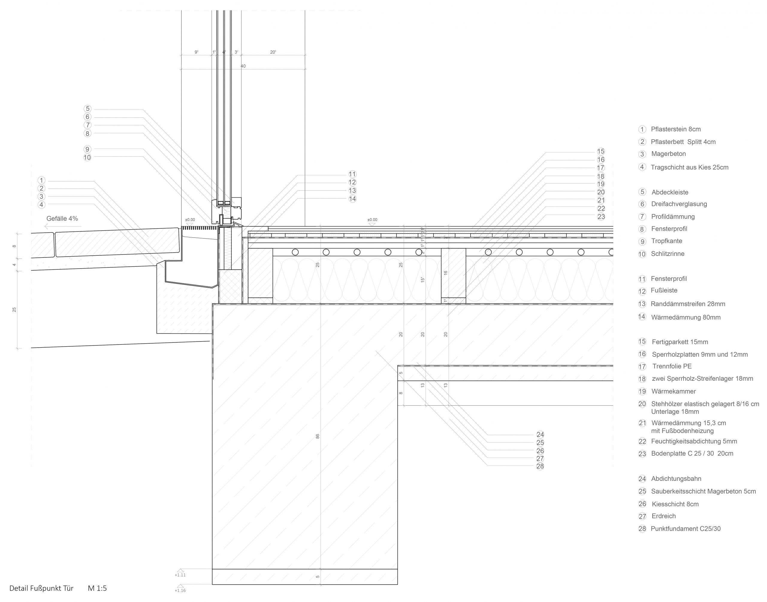
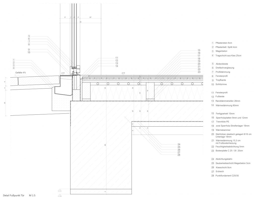
Base point detail door 1:5
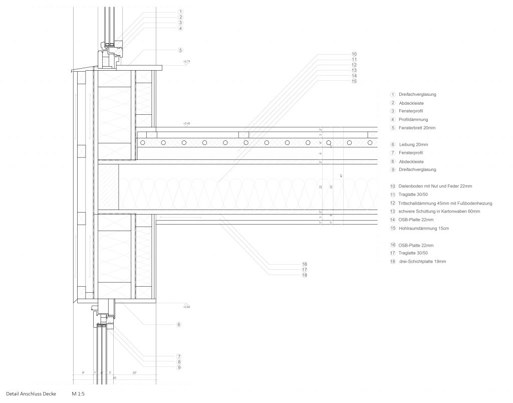
Connection intermediate ceiling detail 1:5
Eaves detail 1:5
Ridge detail 1:5
Eaves detail 1:5
Blasting isometry
Blasting isometry
Further use
House construction kit