Live music hall

To enhance Aachen’s leisure options in the west of the city, a concert hall for events and dancing was planned on an 8,700 m² site within the industrial area. The project was an integrated effort, managed by the chairs of structural design, structural engineering, and building technology, and was carried out by teams of six.

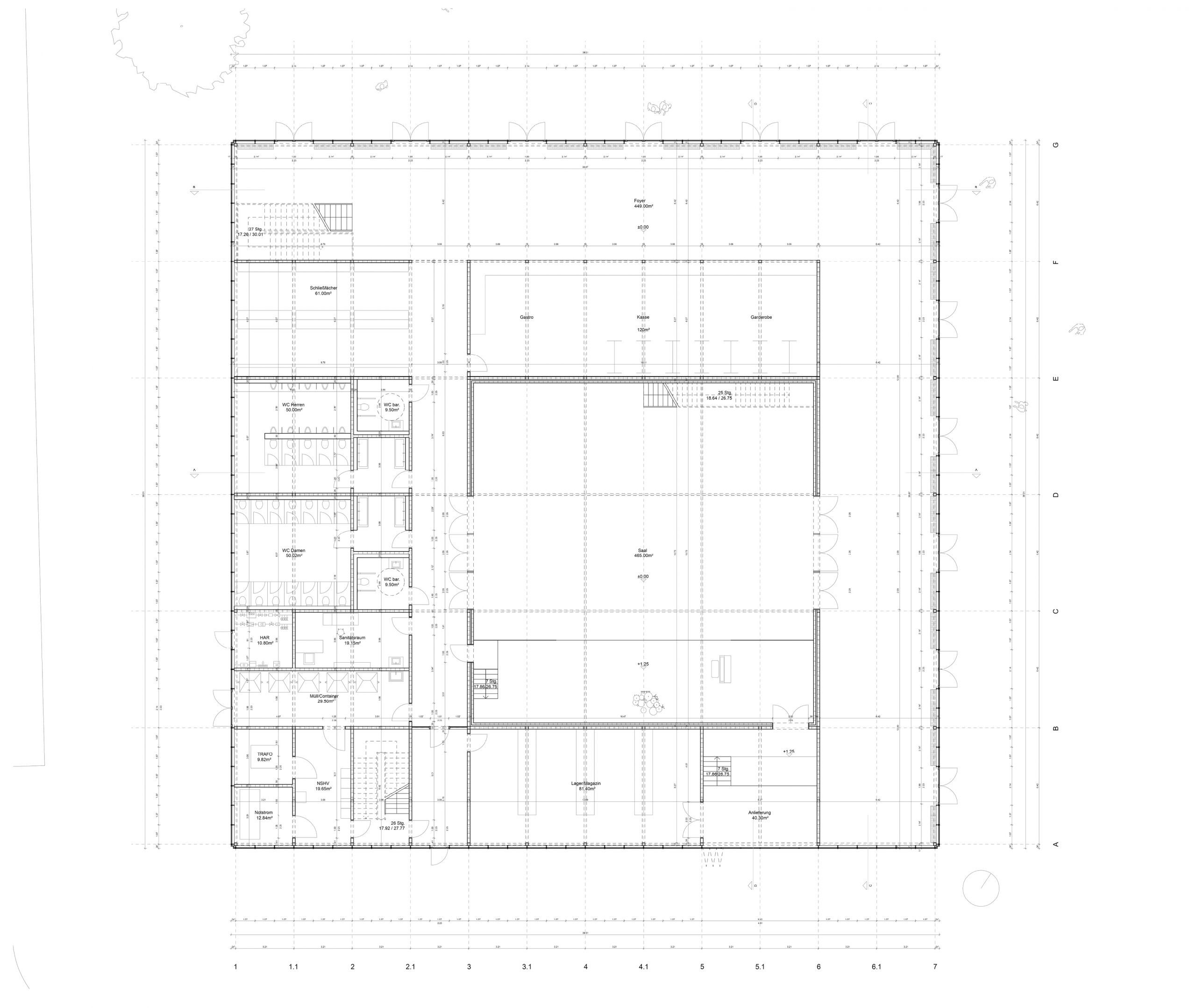
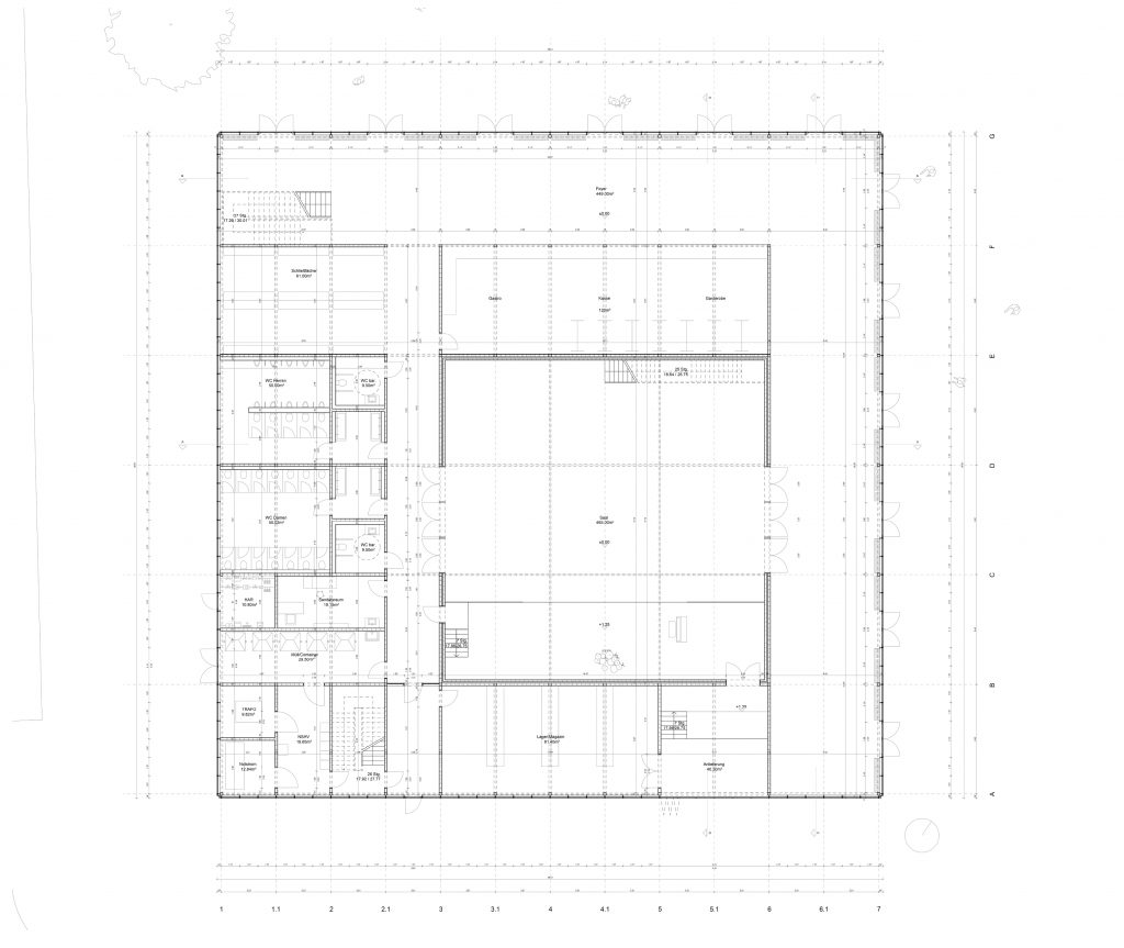
The hall opens up to the adjacent park on one side and extends it by an avenue. At the same time, it creates a space for open-air concerts, flea markets and other activities on the other side. The main entrance to the building faces the Kennedypark.

The building itself follows the house-within-a-house principle, meaning that the Concert Hall forms the focal point and is surrounded by a foyer and the function rooms. The foyer responds to both squares and the quieter function rooms are oriented towards the residential buildings.

The building is designed as a two-storey steel skeleton. The pillars are formed by hot-dip galvanized square tubes and the beams are IPE beams with concrete filling.
The façade consists of polycarbonate panels that clad the building all around and create an opaque appearance. The core of the building in which the hall is located is constructed as an infill with aerated concrete. On the inside of the hall, solid aerated concrete blocks alternate with perforated blocks to support the acoustics and counteract the echo.

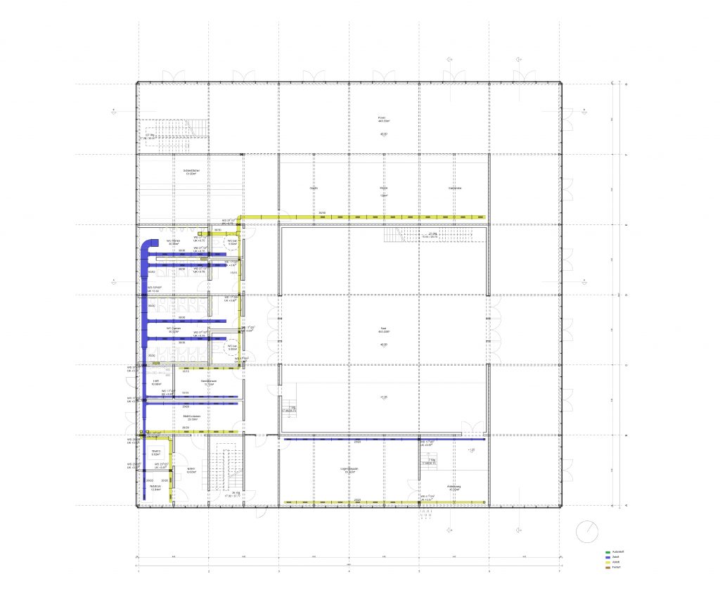
The focus of the project lay on the construction and building technology. In addition to the structural calculations and details, we worked as a team to dimension and plan the building services in detail.

2020

In collaboration with: Marie Becker, Johannes Bergerfurth, Nikolay Marinov, Tina Rahmani, Leon van Ouwerkerk

Visualization Model
Visualization Model
Location
Location
Visualization outside day
Visualization checkroom and foyer
Visualization outside night
Visualization checkroom and foyer
First floor plan 1:50
Second floor plan 1:50
Building view 1:50
Building view 1:50
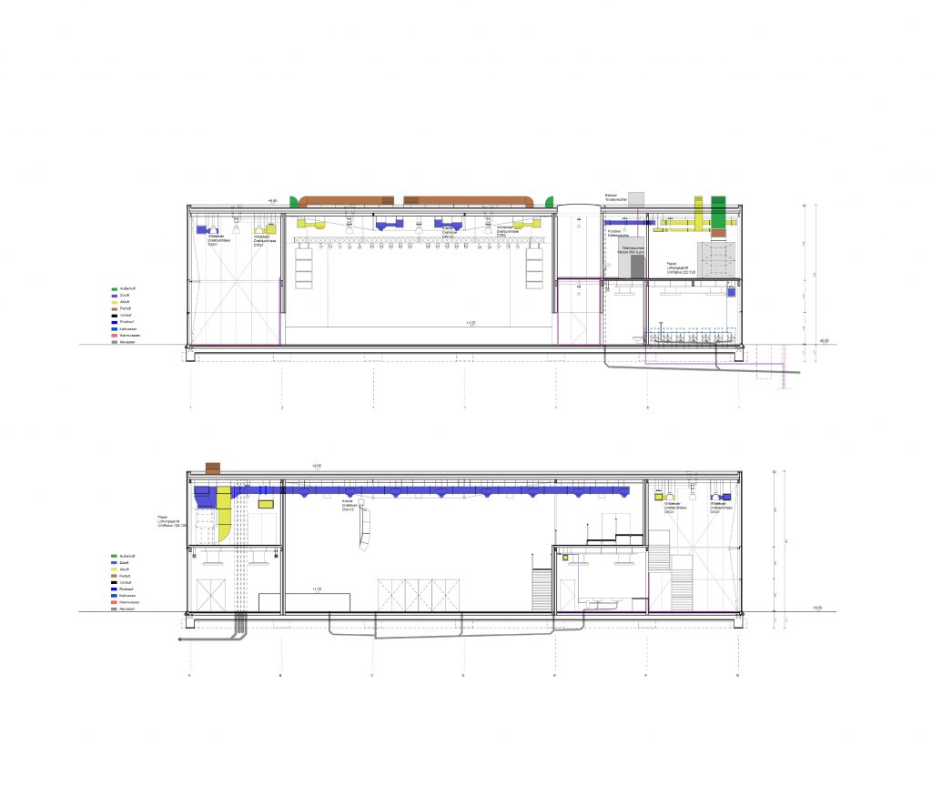
Building sections 1:50
Building sections 1:50
Three-panel projection foyer 1:20
Three-panel projection foyer 1:20
Construction details 1:5
Construction details 1:5
Floor construction details 1:5
Corner construction and gallery detail 1:5
Auditorium wall, roof finish and base point detail 1:5
Energy diagram
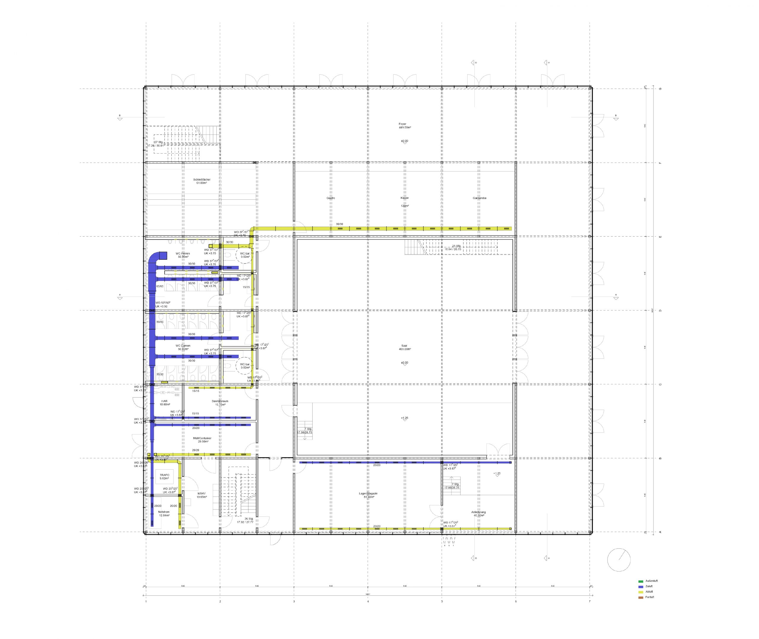
Air ventilation concept first floor 1:50
Air ventilation concept second floor 1:50
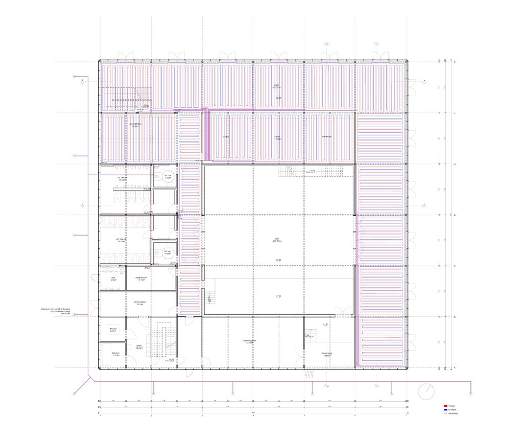
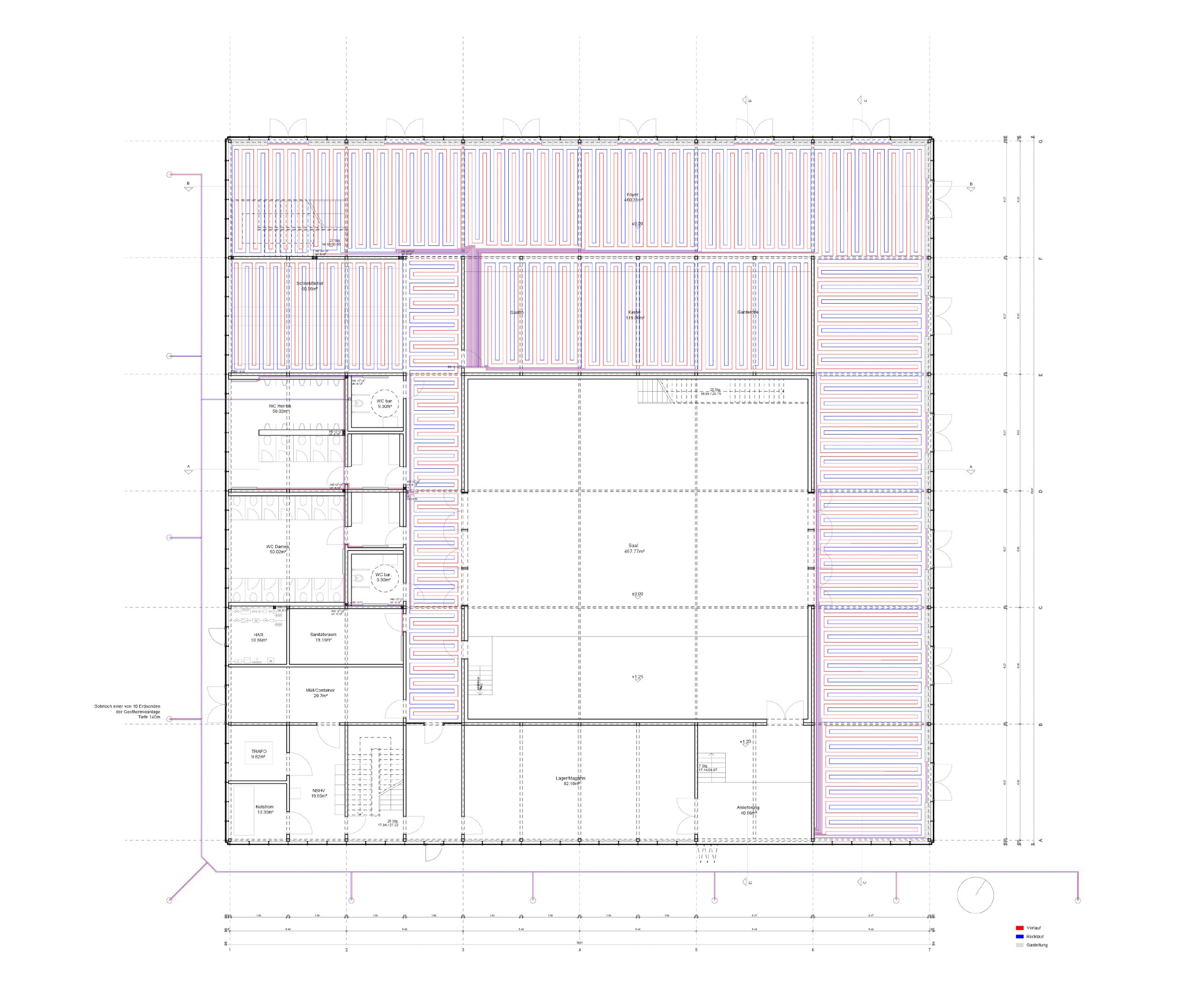
Heating concept first floor 1:50
Heating concept first floor 1:50
Electrical wiring concept first floor 1:50
Electrical wiring concept second floor 1:50
3D Building section
Technical building sections 1:50
3D model of the air ventilation system
3D model of the heating system