Guest house for „Jan de Jong’s house“ in Schaijk, NL

The house of Dutch architect Jan de Jong had to be expanded with a guest house for a team of four researchers. Students were tasked with choosing the research focus for the space and how it would fit into the existing ensemble.

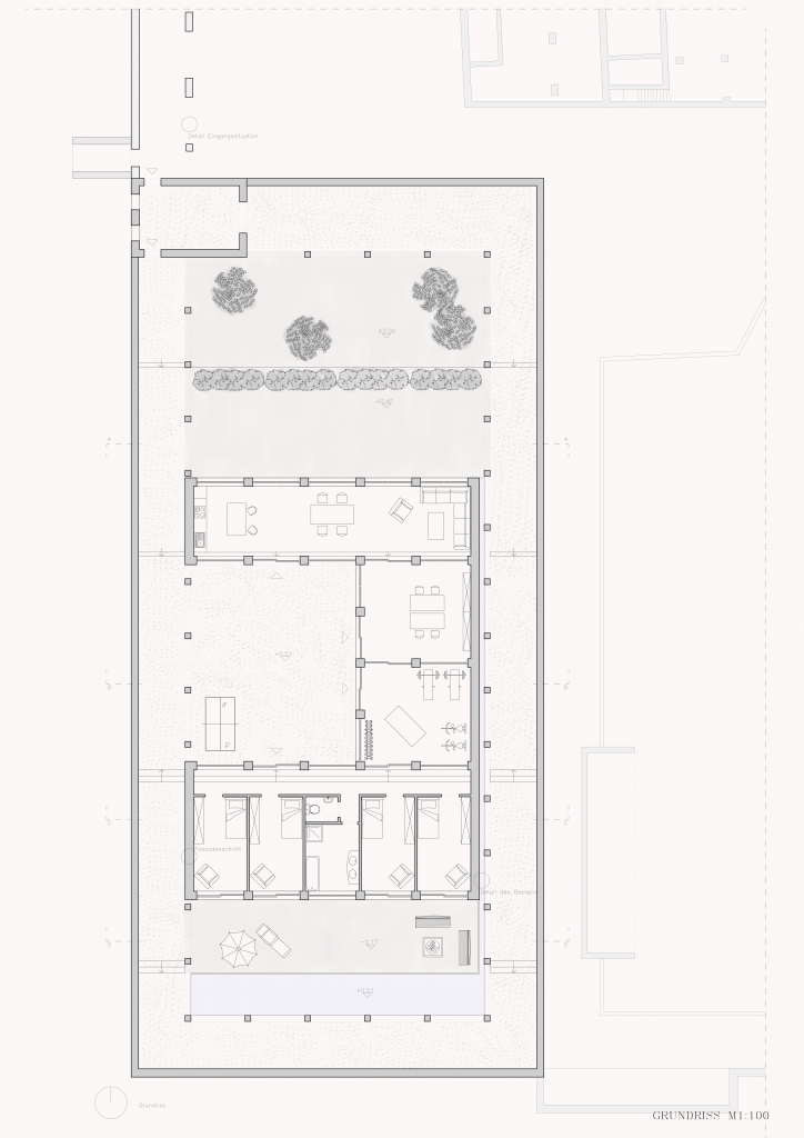
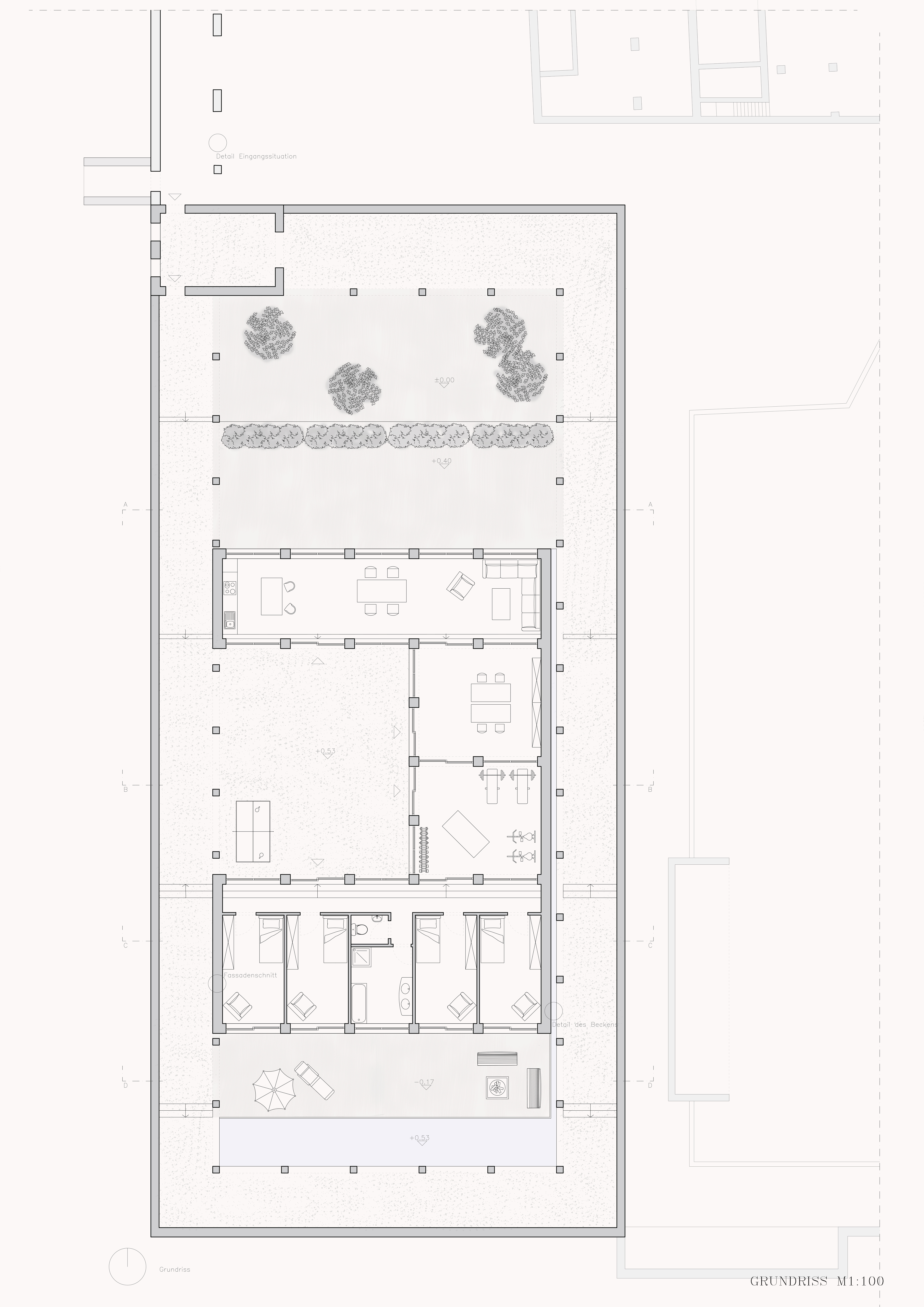
I referred here to Jan de Jong’s overall concept, in which he combines various buildings through courtyards to form an ensemble. The newly created guest house extends the existing buildings on a still undeveloped part of the property, which he saw as a possible building site. Here, three new courtyards are now created from the interplay of the courtyard house and the surrounding arcade, which are adapted to the life of the meeting sports and nutrition scientists.

2019

Architecture model
Isometry 1:200
Location map 1:250
Floor plan 1:100
Building sections 1:100
Building section 1:100
Detail entrance 1:20
Detail facade section 1:20
Detail water basin 1:20
Visualization vegetable garden
Visualization atrium
Visualization arcade
Visualization interior